Modèle de HLL principalement conçu pour l’exportation, il est constitué de quatre modules
de 6m05 de long sur une largeur de 2m43 et d’une terrasse couverte construit en structure métallique livré à plat pour être transportable en containers routiers ou maritimes afin de limiter au maximum les couts de transport.
L’assemble du plancher, des murs et de la toiture ce fait simplement et rapidement par boulonnage ou soudure.
Les façades peuvent être en option habillées de différentes manières en bois, métal ou autres matériaux selon vos souhaits pour s’adapter à votre environnement.
Nous proposerons la possibilité de la rendre entièrement autonome en l’équipent de panneaux solaires, d’un système de récupération et de traitement des eaux de pluie ainsi qu’un assainissement individuelle.
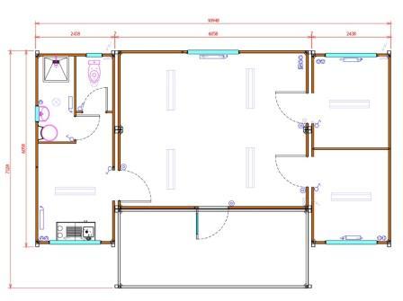
L’ensemble d’environ 53 m² habitable, comprend une grande pièce à vivre, deux chambres, une cuisine, une salle d’eau est un WC. Il est bien-sur possible de rajouter des modules complémentaires selon la surface et le nombre de pièces ou chambres que vous désirez.
Les équipements de base
Chauffage par convecteurs électriques thermostat mécanique, 1 - 2000W, 1 - 1500W, 1 - 1000W, 2 - 500W
En option: Pompe à chaleur monobloc bi-tubes (double flux) M2 position console, 2780W chauffage, 2640W froid.
Les menuiseries
- Fenêtres PVC blanche coulissante 1600x1200 double vitrage et volet roulant PVC - Classement A2 E2a VE2500 - Uw = 1,7 W/m²°C
- Porte d'entrée 946x2125 mm vitrée DIN G série NC50 - Double vitrage sécurit 3+3/9/4
Les sanitaires
- WC à l'anglaise en céramique avec chasse d'eau
- Lavabo céramique robinet eau chaude, eau froide, porte savon, porte serviette tablette et miroir
- Chauffe-eau électrique 50 litres
- Douche céramique 800x800 mm robinet mélangeur, pomme de douche fixe
La cuisine
- Meuble-évier 1000x600mm équipé, bac et égouttoir inox
- Réfrigérateur 135 litres
- 2 plaques de cuissons électrique
- Chauffe-eau 10 litres
Cette habitation légère pourra être utilisée dans de nombreuses circonstances aussi bien pour équiper un camping ou hôtellerie de plaine air, qu’en cas de catastrophes pour proposer des hébergements d’urgence qui seront résister dans le temps et pourrons être aménagées pour devenir de véritables maisons, découvrez notre article maison d'urgence évolutive sur notre blog et notre modèle HLL haîti en ossature bois


Découvrez la Fiche technique module colise pour modele haiti (265.8 Ko) fabrication réalisé par entreprise Jipé usine Française de construction modulaire.
Nouveau service de fabrication de Tiny House entièrement construite sur mesure.