Maison à étage sous combles réhaussé par un rabagrain afin de gagner en surface habitable et de pouvoir y aménager un palier desservent 3 chambres, une salle de bain et un WC.
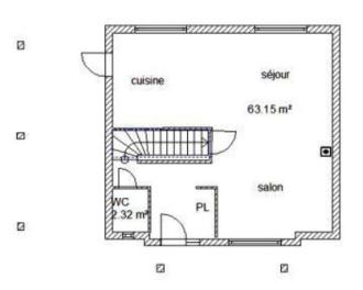
Le rez de chaussée se compose d'une entrée fermé par un placard, un WC et l'escalier, un salon, une salle à manger avec une cuisine ouverte dite américaine
Modèle avec rabagrain : les murs de l'étage sont relevés d'un mètre, plus ou moins, afin de pouvoir gagner de la surface habitable à l'étage, très utile si la largeur de la maison est limité.
Possibilité d'ajouter un garage ou une charreterie et d'aménager une pièce au dessus selon la pente de toit minimum conseillé 45°.

Retrouvez toutes les informations techniques et pratiques sur la construction en ossature bois