Construite de plain pied en ossature métallique
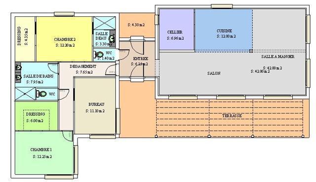
Cette habitation moderne comprend; un sas d'entrée avec WC séparant la partie des pièces à vivre comprenant une salle à manger, un grand salon donnant sur une terrasse en bois, une cuisine américaine avec un cellier.
La partie nuit est elle constituée d'un dégagement couloir désservent une suite parentale avec dressing et salle d'eau douche à l'italienne, une salle de bain, un WC, un bureau et une autre grande chambre avec sont dressing.
Différente possibilitées pour réaliser une toiture plate, étanchéitée ou bac acier nous vous conseillerons.


Toutes les informations sur la construction de maison métallique