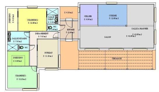
Grande maison moderne très lumineuse ouverte sur l'extérieur avec une grande terrasse en boi, un toit plat avec un sas d'entrée séparant la partie jour et la partie nuit.
Cette construction de plain pied est constructible dans tous les matériaux que nous proposons que ce soit en bois, métal ou en maçonnerie, briques ou parpaings.
Le toit terrasse peut être réalisé de différentes façons en étanchéité, en bacs aciers ou en toiture végétalisée.
Les façades habillées avec des matériaux moderne et recevoir une isolation extérieure.


Toutes les informations sur la construction de votre maison en ossature métallique