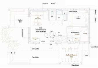
D’une surface habitable de 35m² et d’une terrasse de 40m² avec deux chambres et la possibilité de 4 à 6 personnes.
HLL écologique isolé en laine de bois avec chauffe eau solaire thermique et récupération d’eau de pluie.
DESCRIPTIF H.L.L
Construction des murs extérieurs en ossature bois 150/44 bardage extérieur de 20mm en pin sylvestre traité, contreventement OSB de15mm, isolation dans l’ossature 150mm de laine de bois.
Les cloisons intérieures sont en ossature bois 100/32 avec 100m de laine de bois en isolation phonique.
L’habillage intérieur des murs, cloisons et plafond est réalisé en lames de bois pin sylvestre non rabotées hydro ciré blanc.Posé sur une structure porteuse traité autoclave classe 4. Plancher massif en pin sylvestre 140/30mm, avec 100m d’isolant laine de bois.





La terrasse est en lames large classe 4.
L’implantation sur longrines ou dalle béton est à la charge du client.
La toiture en toit plat bac acier avec récupération de l’eau de pluie isolée par 150mm de laine de bois. Charpente apparente en pin sylvestre
Les menuiseries sont en bois lamellé collé 3 couches oscillobattants ou battantes et baies coulissantes double vitrage. Volets coulissants type persienne. Porte bois massif.
L’électricité éclairage complet par LED, le circuit électrique est non apparent, va et vient dans les chambres et le séjour. Deux liseuses dans la grande chambre et deux spots en tête de lit dans la chambre des enfants.
Terrasse trois points lumineux au sol, éclairage des marches, un hublot lumineux espace diner et l’espace « lounge » une liseuse dans l’espace séjour. Quatre points lumineux suspendus, deux liseuses, cuisine éclairage intégrée, deux niches.
Salle de d’eau éclairée par un point lumineux sur le miroir.

Découvrez notre nouveau modèle ECOLUX 2 Fiche et prix modele ecolux 2 (460.28 Ko) Remplace ce modèle
Nouveau service de fabrication de Tiny House entièrement construite sur mesure.